Двухкомнатная квартира 64,00 м2 по ул. Новотушинская 4 за 13900000 руб.

Двухкомнатная квартира по ул. Новотушинская, 4 в Москве
Цена 13 900 000 р. (217 188 р./м2)
Подать заявку на ипотеку
Адрес Новотушинская, 4
Этаж 13/22
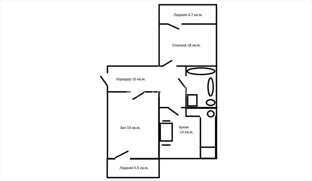
Площадь общая 64 м2, жилая 34 м2, кухни 14 м2
Кол-во комнат Двухкомнатная
Лот № 74609 Лучшее предложение района ! Продается 2 - х комнатная квартира в новом монолитном доме Квартира большая, светлая, просторная!! Распашонка! Две большие застекленные и утепленные лоджии Панорамные окна на одной из лоджий Две большие комнаты с мебелью Просторная кухня со встроенной техникой известных марок В квартире сделан хороший ремонт с использованием высококачественных материалов В ванной установлена дорогая сантехника Проведена новая электропроводка Просторный коридор со встроенным шкафом Район с прекрасно развитой инфраструктурой - все необходимое рядом! В собственности более 5-ти лет 2 взрослых собственника Имеется подземный паркинг Место в нем продается отдельно!
Описание дома
Этажность дома 22
Объявление № 23894658
Дата подачи:
4 февраля 2026 г. 3:51
Дата обновления:
20 февраля 2026 г. 19:28
Просмотров 4 Хотите продать быстрее?

Продавец
Отделение Новослободское
email: 6604427@mgsn.pro
Показать номер телефона
Пожаловаться
Комментарии:
Добавить